



發布日期:2020-03-26
來源:綠建之家為避免風電機組耦合振動,同時兼顧材料成本,超高風電塔架一般采用鋼-混組合形式。風電塔架一般地處偏僻,為適應批量化、短周期的施工需求,混凝土部分通常采用裝配式工藝。
本文以某鋼-混組合風電塔架為例,對塔架混凝土部分預制構件從拆分方案到深化設計中孔道、鋼筋及預埋件等布置要點進行總結,提出利用BIM三維建模出圖解決碰撞問題,借助參數的驅動方式快速布置鋼筋,采用極坐標方式進行定位等措施。
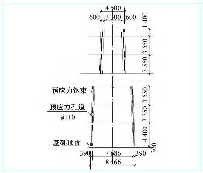
本文以江蘇省某鋼-混凝土組合風電塔架項目為例進行講解,該項目中風電塔架均為2.0MW電勵磁風電機組,輪轂高140m,由下部高55.6m的混凝土塔筒和上部高84.4m的鋼塔筒組合而成。為使混凝土塔筒在正常使用階段不出現拉應力,采用40束無粘結預應力鋼絞線進行張拉錨固,上端錨固在鋼法蘭上,下端錨固在基礎中。上部鋼塔筒部分通過法蘭盤實現與混凝土塔筒的連接。為便于施工,下部的混凝土塔筒采用裝配式結構,上部鋼塔筒結構與傳統形式相同。本文僅研究下部混凝土塔筒設計。該項目所在地抗震設防烈度為7度,混凝土塔筒抗震等級為二級。
塔架拆分設計
通過結構優化,混凝土塔筒部分確定為中空圓臺柱,其幾何信息如表1所示。

由于該項目地處偏僻,為保證構件生產、運輸及吊裝方便,綜合考慮洞門高度、構件吊重和鋼模板尺寸模數等限制條件,將混凝土塔筒部分拆分成4.4m+3.35m+3.55m×13+1.4m = 55.3m 組合的16個節段( 見圖1) 。為減少現場濕作業,單節段構件不再沿環向進行拆分。按照上述拆分原則,最大構件重約100t,位于基礎頂面第1塊,其余構件吊重均不超過90t,滿足預制構件吊重限值。

圖1 混凝土塔筒拆分
為使各節段混凝土塔筒間傳力合理、施工方便,本項目進行如下節點設計。對鋼-混過渡部分,混凝土塔筒通過上部錨固的鋼墊板與鋼法蘭接觸,借助預應力預壓作用實現連接,如圖2所示。

圖2 鋼法蘭與混凝土構件連接節點
混凝土塔筒段間的接縫,借鑒裝配式剪力墻水平縫連接方法,通過接縫注漿的方式實現連接,如圖3所示。

圖3 混凝土塔筒水平縫節點
本項目混凝土塔筒為三維薄壁曲面構件,預制構件深化設計重點主要體現為坐標系確定、孔道定位、鋼筋和預埋件的布置等方面。由于本項目構件形式較復雜,因此采用BIM 技術對構件進行深化設計。
構件坐標系確定由于裝配式施工工藝是將整個混凝土結構拆分為多個獨立構件進行設計、生產和安裝,為保證后期生產與安裝定位準確,必須在設計階段對構件在整體結構中的定位關系予以統一和明確。為此,預制構件坐標系按如下原則確定:
1.構件下底面圓環中心作為坐標系原點;
2.構件由上到下水平投影按照極坐標系的方式定位;
3.從坐標原點出發沿洞門中心線方向為0°方向,并按照順時針方向為正向;
4.坐標原點朝向構件上方作為坐標系z 軸。構件坐標系如圖4所示。

圖4 構件坐標系
預應力孔道定位
該項目中混凝土塔筒構件每個截面均有40個預應力孔道,根據與門洞的位置關系可分為標準孔道和非標準孔道,如圖5所示。

圖5 預應力孔道
1.標準孔道分布于距洞門較遠的區域,孔道中心線在水平面投影沿圓弧方向等角度均勻布置,孔道軸線投影交匯于圓心,即坐標系原點。

圖6 構件節段間孔道偏差
2.非標準孔道靠近洞門,屬于三維孔道,存在2 個維度的傾角,孔道軸線投影不通過圓心。塔筒吊裝完成后,預應力鋼束均需從每個孔道自上而下依次穿過。由于孔道數量較多,容易出現構件節段間孔道偏差,如圖6所示,孔道凈空間被削弱,穿束失敗風險增加; 此外非標準孔道由于三維斜率原因,問題將更為突出。為解決上述問題,
首先在確定孔道內徑時考慮生產誤差,預留足夠空間,因此本項目孔道截面與鋼束截面面積比為3;
其次在繪制構件三維模型時,采用底圖方式對孔道進行定位和繪制,坐標精度為0.1mm。
鋼筋布置
混凝土部分塔筒為薄壁圓環形構件,且半徑隨高度線性變化,使環向鋼筋布置的基準不斷變化,導致鋼筋布置及定位十分繁瑣。為此,綜合考慮構件特征,對鋼筋布置方式進行優化。

圖7 鋼筋參數化設計
1.針對構件內外側豎向鋼筋采用環向陣列的布置方式,考慮到構件高度不同,將陣列后的鋼筋族設計為參數化驅動的鋼筋組,通過載入方式實現鋼筋快速布置( 見圖7a) ,與常規Revit單一放置鋼筋方式相比效率提升約80%。
2.對構件環向鋼筋采用報告參數的方式解決布置問題。有門洞口避讓的環向鋼筋,增加開口寬度參數,實現多參數驅動,如圖7b所示,相比常規Revit 鋼筋放置方式效率提升約60%。
預埋件布置
由于塔筒節段為三維曲面構件,給預埋件的定位與布置造成了極大困難。不僅需要考慮定位方式及精度問題,還要考慮基準面為曲面給埋件設計帶來的困難。
脫模及吊裝埋件與支撐調標高用埋件一般設置在構件橫截面上,放置方式無特殊要求。注/出漿孔道、防雷埋件及設備連接用牛腿埋件一般設置在塔筒內側壁上,由于內側壁為三維曲面,采用直角坐標系定位不易表達,且精度不易控制,最終采用極坐標方式進行定位。同時由于曲面傾角存在,為保證埋件外露面處于水平和豎直狀態,在埋件設計過程中要考慮埋件傾角問題。
由于單個構件中預埋件數量較多,埋件間、埋件與鋼筋間交叉情況較為頻繁,因此需要在設計過程中重點關注,借助Revit 軟件的三維顯示功能進行核查和調整,取得了良好的效果。
1.對風電塔架及類似結構三維曲面構件深化設計,利用BIM三維建模出圖可有效解決碰撞問題,同時借助參數化驅動方式可對鋼筋進行快速布置。
2.由于風電塔架外形如圓環構件,考慮到幾何外形設計和埋件定位問題,采用極坐標較直角坐標系簡便且易于表達。
3.在塔筒構件深化設計階段,應綜合考慮生產、運輸與吊裝環節問題,保證設計方案對后續環節具有實際指導意義。深化設計階段重點關注問題為孔道精確布置、埋件準確定位及與鋼筋間碰撞檢查等。